Kopfzeile

Inhalt

Informationen zur Abstimmung über den Bettentrakt des Kantonsspitals

An dieser Stelle finden Sie alle wichtigen Informationen und Unterlagen zur Volksabstimmung vom 11. März 2012 über den Umbau und Ersatz des Bettentrakts des Kantonsspitals Obwalden.

Zugehörige Objekte

Name
Bettentrakt_Bericht_KRB_Anhang.pdf (PDF, 3.59 MB) Download 0 Bettentrakt_Bericht_KRB_Anhang.pdf
460_113_Situation.jpg (JPG, 244.13 kB) Download 1 460_113_Situation.jpg
460_122_Nordansicht.jpg (JPG, 187.25 kB) Download 2 460_122_Nordansicht.jpg
460_123_Westansicht.jpg (JPG, 127.6 kB) Download 3 460_123_Westansicht.jpg
460_124_Sudansicht.jpg (JPG, 184.01 kB) Download 4 460_124_Sudansicht.jpg
Aussenbild.jpg (JPG, 1.69 MB) Download 5 Aussenbild.jpg
Spitalzimmer.jpg (JPG, 2.16 MB) Download 6 Spitalzimmer.jpg
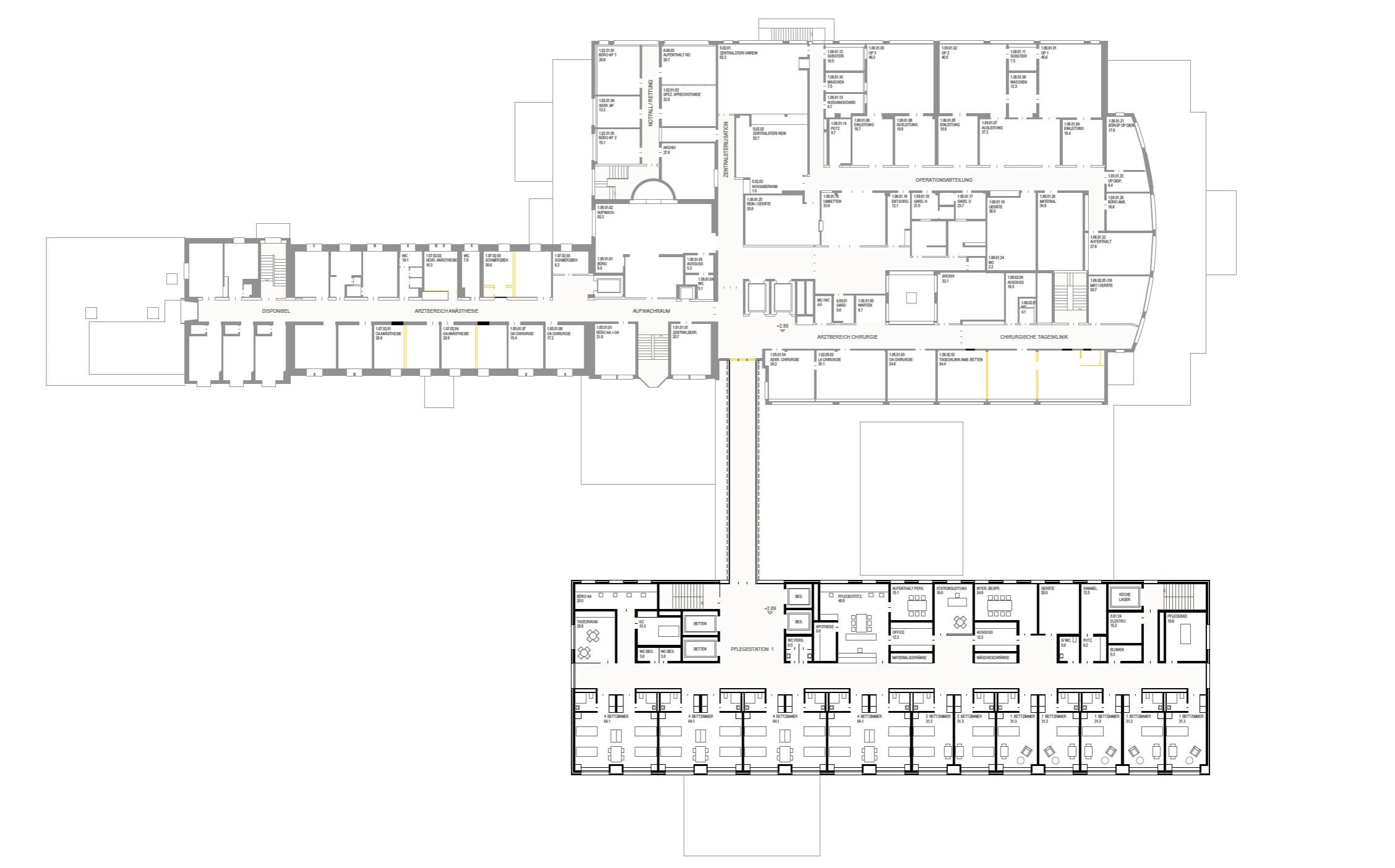
Grundriss_1OG.jpg (JPG, 163.56 kB) Download 7 Grundriss_1OG.jpg
Grundriss_3OG.jpg (JPG, 125.62 kB) Download 8 Grundriss_3OG.jpg
Grundriss_4OG.jpg (JPG, 80.6 kB) Download 9 Grundriss_4OG.jpg
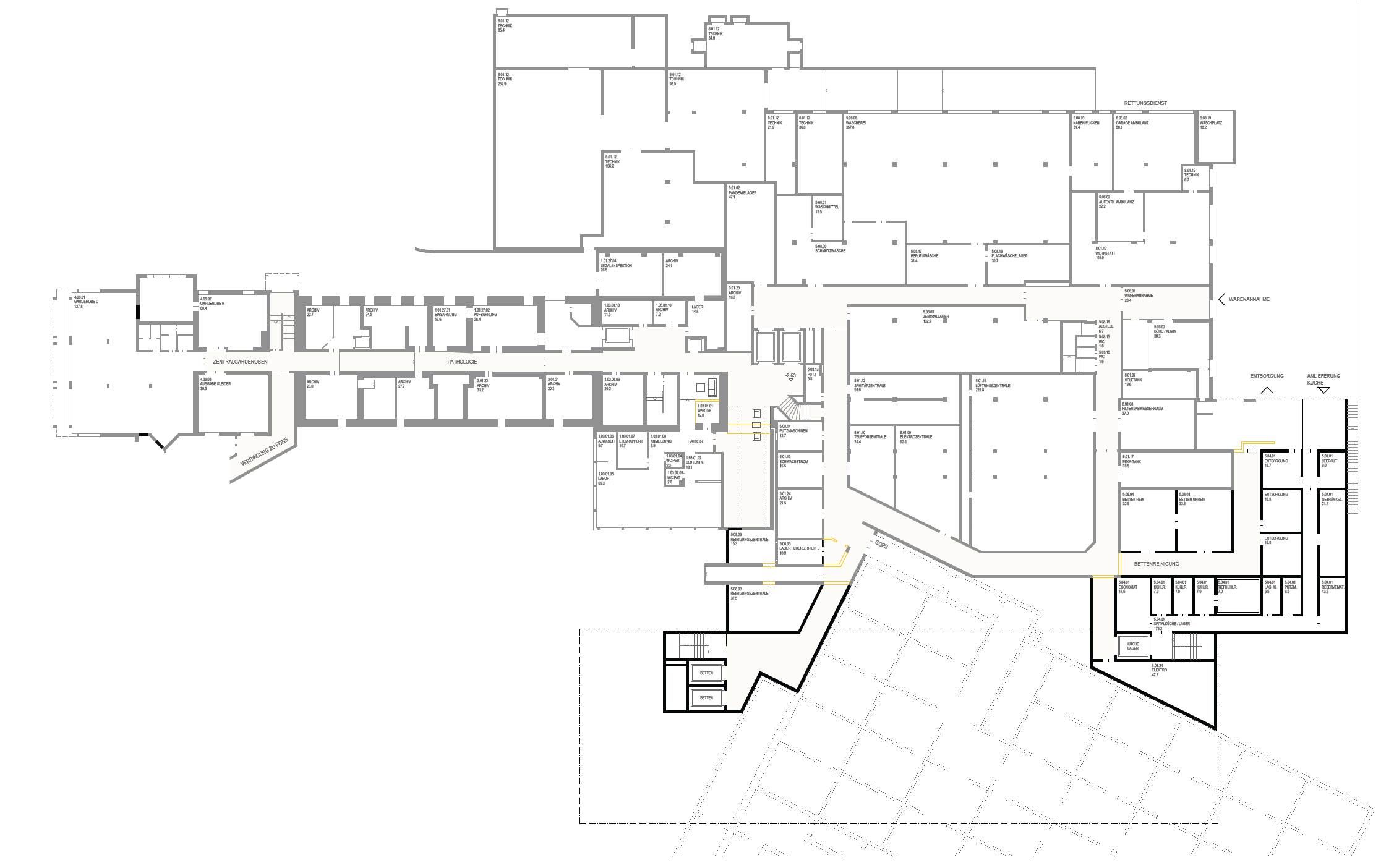
Grundriss_EG.jpg (JPG, 212.4 kB) Download 10 Grundriss_EG.jpg
Grundriss_UG.jpg (JPG, 191.45 kB) Download 11 Grundriss_UG.jpg
Abstimmungsbroschure.pdf (PDF, 288.81 kB) Download 12 Abstimmungsbroschure.pdf
Medienmitteilung.pdf (PDF, 164.07 kB) Download 13 Medienmitteilung.pdf
Infoveranstaltung_8._Februar_2012.PDF (PDF, 1011.49 kB) Download 14 Infoveranstaltung_8._Februar_2012.PDF